PRODUKTE

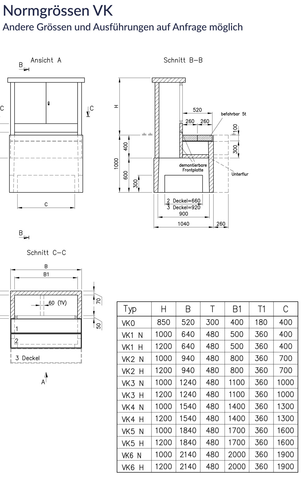
Normgrössen VK

Andere Grössen und Ausführungen auf Anfrage möglich.

Sichtbeton oder sandgestrahlt
Waschbeton grau oder beige

Dach aus Sichtbeton

Riffelblechdeckel

Varianten mit TV- und Swisscom-Abteil

Zwei Bauhöhen (100cm / 120cm über Terrain)

Spezialausführungen

Einbau von sämtlichen Lastschaltleisten-Fabrikaten

Türblatt Alu gebürstet farblos matt eloxiert oder Alu lackiert nach RAL

Frontplatte aus leichtem, glasfaserverstärktem Beton

befahrbare Fundamente bis 5t oder Unterflur-Fundamente

Industrie Neuhof 4
CH-3422 Kirchberg